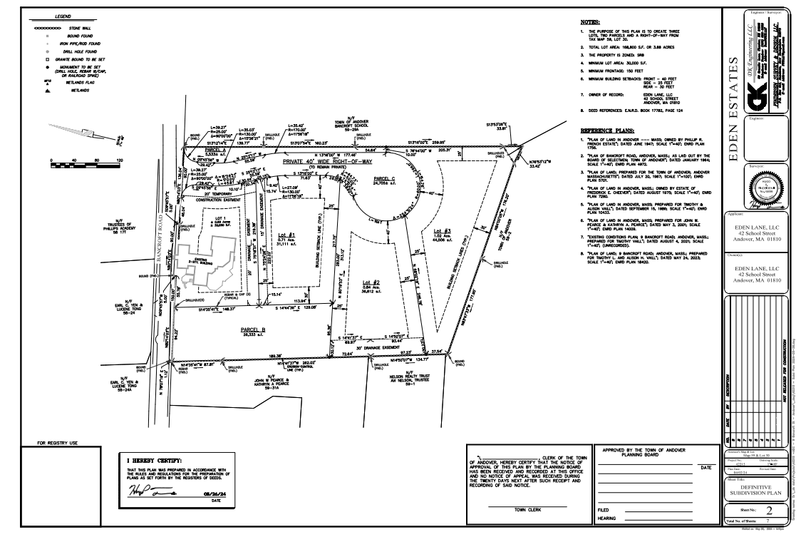
Eden Estates

Click image to view full document

Eden Estates Definitive Subdivision Plan

Category: Permitted

Plan/File Number: PL24-3390 & SP24-03

Applicant: Eden Lane, LLC

Project Description: 3-Lot subdivision located off Bancroft Road.

View Subdivision Approval

View Special Permit


applicant submittal

  1. Definitive Subdivision Plan Application
  2. Special Permit for Earth Movement Application
  3. Definitive Subdivision Plan Set
  4. Fire Truck Turning Movement
  5. Stormwater Management Report
  6. Notice to the Board of Health of the Definitive Subdivision Plan Submittal
  7. Notice to the Town Clerk of Definitive Subdivision Plan Submittal
  8. Letter from Norse Environmental Services 6.1.24
  9. Horsley Witten Group Initial Stormwater Peer Review 6.17.24
  10. Board of Health Memorandum 6.18.24
  11. Revised Special Permit for Earth Movement Report 7.17.24
  12. Revised Definitive Subdivision Plan Set 7.17.24
  13. Construction Sequence 7.17.24
  14. Revised Stormwater Report 7.17.24
  15. Revised Drainage Report 7.17.24
  16. DK Engineering Letter to the Planning Board RE: Waterline Loop 7.17.24
  17. Response to Initial Stormwater Peer Review 7.17.24
  18. Operation & Maintenance Plan 7.18.24
  19. Horsley Witten Group Second Stormwater Peer Review 7.24.24
  20. Revised Stormwater Report 8.7.24
  21. Revised Drainage Report 8.7.24
  22. Andover Drainage Geodatabase 8.7.24
  23. Revised Definitive Subdivision Plan Set 8.7.24
  24. Response to Second Stormwater Peer Review 8.7.24
  25. Horsley Witten Group Third Stormwater Peer Review 8.9.24
  26. Request to Continue Public Hearing Without Discussion 8.9.24
  27. Landscape Maintenance Plan 8.9.24
  28. Extension of Time Request 8.13.24
  29. Revised Definitive Subdivision Plan Set 8.19.24
  30. Response to Third Stormwater Peer Review 8.19.24
  31. Earth Movement Report 8.19.24
  32. Earthwork Quantities Cut/Fill Map 8.19.24
  33. Soil Suitability Assessment 8.19.24
  34. Illicit Discharge Compliance Statement 8.20.24
  35. Horsley Witten Group Fourth Stormwater Peer Review 8.23.24
  36. Request to Continue Public Hearing without Discussion 8.26.24
  37. Revised Definitive Subdivision Plan Set 8.29.24
  38. Response to Fourth Stormwater Peer Review 8.29.24
  39. Revised Drainage Report 8.29.24
  40. Illicit Discharge Compliance Statement 8.29.24
  41. Offsite Photos 8.29.24
  42. Horsley Witten Group Fifth Stormwater Peer Review 8.30.24
  43. Request to Continue Public Hearing without Discussion 9.10.24
  44. Response to Fifth Stormwater Peer Review 9.16.24
  45. Letter RE: Runoff to Bancroft Road 9.16.24
  46. Letter from Norse Environmental Services, Inc. to the Director of Conservation 9.21.24
  47. Revised Definitive Subdivision Plan Set 9.25.24
  48. Horsley Witten Group Sixth Stormwater Peer Review 9.30.24
  49. Request to Continue the Public Hearing without Discussion and Extension of Time 10.7.2024
  50. Revised Stormwater and Drainage Report 11.1.24
  51. ANRAD Application October 2024
  52. Existing Conditions Exhibit 10.29.24